2019 - Unser Heubadl entsteht

Veröffentlicht am 10. Januar 2020 von Helmuth Mayr

Was soll man sagen. Ich habe eine Schreibkrise. Kein Blogbeitrag in 2019. Vielleicht darf ich endlich "hatte" schreiben. 2020 wird anders. Ist ja noch früh im Jahr. Es sind so viele Gedanken, die ich niederschreiben möchte, aber dazu wohl ein anderes Mal. Wir bauen gerade wieder an etwas Tollem! Unserem Heubadl. 

Die Idee haben wir schon länger. Eine Wohlfühlzone. Etwas Besonderes. Ich wollte einen Raum der Künste machen, wo man gut Musik hören kann, malen kann, philosphieren. Aber der Mut hat gefehlt. Auch für die Idee, mehere Ebenen in die hohen blauen Silos zu geben, verwerfen wir. Immer wieder gehen wir mögliche Orte ab. Dann finden wir den Ort. Der Einfall des Lichts begeistert uns und wir starten konzeptionell im Mai 2019 los. Ende August dann die Aufräumarbeiten. Anfang September sieht es dann schon recht gut aus. Es wird!

Bestand Heubadl

Wie mit dem Schreiben ist es vielleicht auch beim Bauen. Am Anfang ziemlich mühsam. Alte Dinge werden entsorgt. Ideen verworfen. Neu aufgebaut. Wieder verworfen. Ist ziemlich mühsam. Und zermürbend. Hier hilft mir die Frage: Wie isst man einen Elefanten? Stück für Stück.

Also beginnen wir den Bereich, den wir gerne zur Wellnessoase machen möchten, Stück für Stück zu entkernen. Die Bodenbretter kommen weg. Wir kommen drauf, dass die gesamte Struktur sehr fragil ist. Die Balken sind schlicht zu schmal. Der Statiker darf her. Und jetzt kommt es dicke. Zumindest was die neu einzubauenden Balken anbelangt. Nach dem Einsetzen der Balken geht es dann schon recht flott zur neuen Decke bzw. dem Boden für unser Heubadl. Ein Anfang ist gemacht.

Die neue Balkenstruktur

Der Boden entsteht

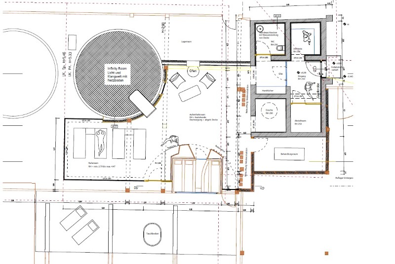
Wie wir es bereits vom Umbau des Haupthauses gewohnt sind, ist bei so einem Projekt nichts so wirklich planbar. Es kommen immer wieder neue Feinheiten dazu. Wie machen wir die Anschlüsse zu Wand, wenn nun der gesamte Boden 30 cm tiefer ist? Sonst werden nämlich die Türen zu niedrig. Dafür muss der gesamte Bereich von einer niedereren Seite erschlossen werden. Immer wieder neue Fragen. Sind wir bereits gewohnt. Ingrid und Andreas, die Architekten, auch :-). So sehen wir uns veranlasst, das Projekt mindestens 5-6 mal umzuzeichnen. Einige Entwürfe hier. Der Erste Entwurf datiert den Mai 2019, der Letzte der Entwurfsreihe den September. Endlich. Nun haben unser Einreichprojekt. Man achte vor allem darauf, wie sich die Postion des Eingangs verändert :-)

2019_05_24 Grundriss

2019_07_26 Grundriss

2019_07_30 Grundriss

2019_09_09 Grundriss

Der Eingangsbereich ist so richtig spannend. Sechs unverrückbare Betonsilos. Futtersilos. 25 cm dick und mehrere Meter tief. Niemand hat seit langer Zeit reingesehen. Und wir schauen auch nicht rein. Erst als die Türen final eingezeichnet sind und die Betonschneider anrücken. Ab jetzt kann man sich langsam vorstellen, wie es werden wird. Die Motivation steigt. Wir sind im Oktober angelangt. Es wartet noch viel Arbeit auf uns. Aber dazu ein anderes Mal.

Bodendämmung

Bodendämmung

Bodendämmung

 

    

Lust auf Urlaub?
Anreise
Abreise
Erwachsene 
Kinder 

Unverbindlich anfragen